$499,000
 $2,679 est/mo Sourced by Back At You

8499 3 Highway,Port Mouton, NS B0T1T0

Port Mouton, NS B0T1T0

Share:

Description

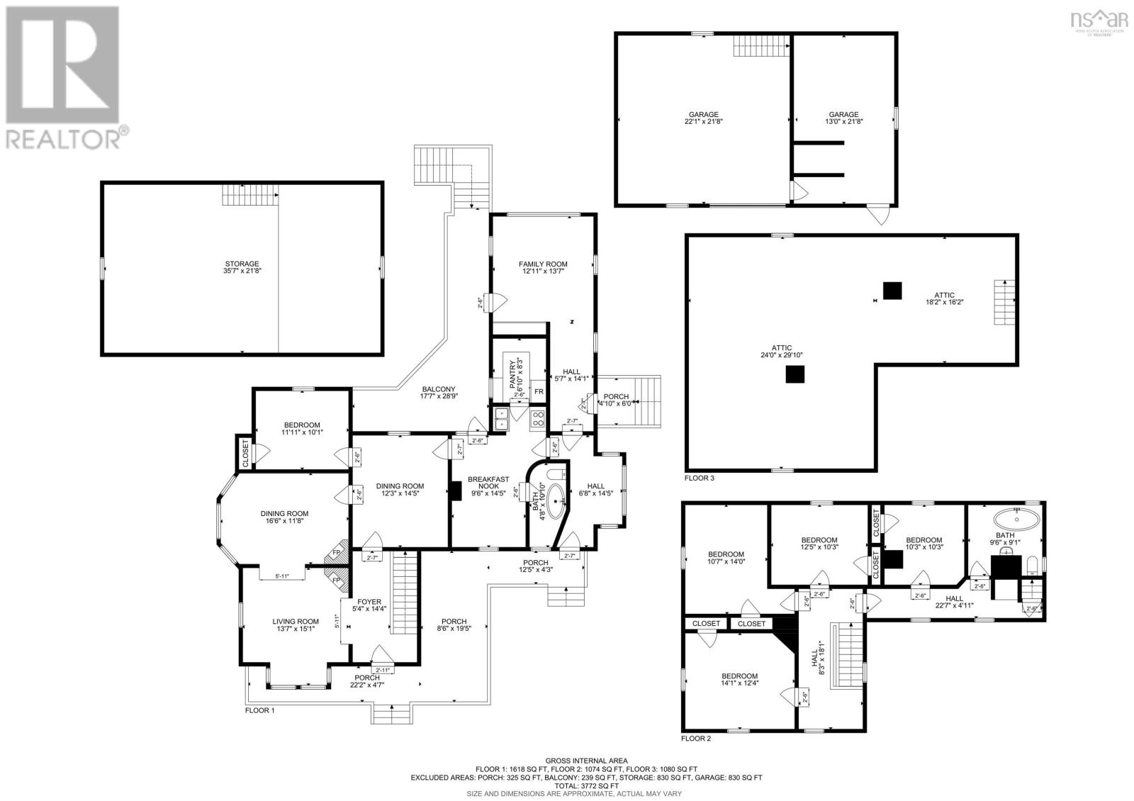
Large Victorian or Edwardian houses built directly on the ocean in Nova Scotia are "few and far between". The Isaiah Leslie house, constructed in 1902, is a time capsule for a by-gone era, located in the quiet, seaside village of Port Mouton and known as the most beautiful house ever built in the village. "Sheep overboard!" was the cry when Champlain moored off the coast in 1604, legend has it, as a frenzied creature, so overwhelmed at the sight of land after its long journey, leapt and swam to shore. Isaiah was descended from United Empire Loyalists and was likely the most successful merchant in the village to have built such an impressive, full two and half story, five bedroom home with its gingerbread and fine wrap-around verandah. The house sits on an original stone foundation overlooking the ocean on a quiet, secondary road which winds its way along the coast just 15 minutes drive from the heritage town of Liverpool. The main floor features a welcoming large front entry and large double parlour to greet guests. A generous sized formal dining room is at the rear of the hall with a main floor, senior bedroom tucked away to the side. Continuing through the dining room one enters what was once a large kitchen with pantries at the rear. There is a spacious side entry from the front verandah and at the rear of the house is a family room with a view of the ocean. The second floor features a broad hall at the top of the stairs which lends access to three bedrooms and in addition, a long hall leads to the former servant's quarters, family bath and staircase an undeveloped, immense attic. The property also features one of the best preserved barns in the county. The house has remarkably well preserved, lighter toned woodwork with most of the interior architectural detail in tact. This home's landscape gently slopes to over 100 feet fronting on a bay. Located a short walk to a convenience store, close to Carter's Beach, Summerville Beach and White Point Resort. (id:13843)

Details

MLS #202521456
Listing TypeFor Sale
StyleHouse
StatusActive
Year1902
Days On Site75
Listing Provided ByEngel & Volkers (Lunenburg) | Michael Wilson

Features

Bed(s)5
Bath(s) 2 Total
SQ Feet2,692
BasementY
Story(s)2
Acreage0.60
Water FrontYes
Property ViewOcean view

Area Information

ProvinceNS
CityPort Mouton
Postal CodeB0T1T0
Sourced by Back At You

Request a showing

Request a showing

Loading Form
The information is being provided by CREA. Information deemed accurate but not guaranteed. Information is provided for consumers personal, non-commercial use, and may not be used for any purpose other than the identification of potential properties for purchase. Copyright 2025 CREA. All Rights Reserved.

Contact

Learn More About This Property

ProvinceNS
CityPort Mouton
Postal CodeB0T1T0
Sourced by Back At You
Listing Updated: November 7, 2025 at 10:14:08 AM PST